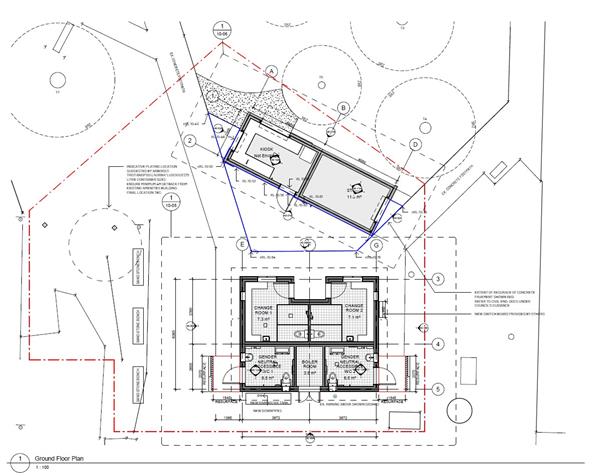
Hammond Park Amenities Upgrade

  • Project description: Upgrade to the existing amenities building.
  • Project address: Hammond Park, 34 Henry Street, Ashfield NSW 2131
  • Progress: Procurement of Building Services
  • Expected completion date: March 2026
  • Budget: FY24/25 $550K
  • Contact: Samantha Da Silva on 02 9392 5978 or samantha.da.silva@innerwest.nsw.gov.au

Hammond Park Amenities_View 1

Hammond Park Amenities_View 2

Hammond Park Amenities_View 3

Hammond Park Amenities_Plan

 

Rate this page

  • Rate as The content was useful0% The content was useful votes
  • Rate as The content was not useful0% The content was not useful votes

Page last updated: 04 Nov 2025